Description
Building plot
Consent granted for the development of a 4 bed family home (3,750 sq ft)
Plans for development of an ecological haven within the grounds
17 acres
Additional 15 acre field is available by separate negotiation.
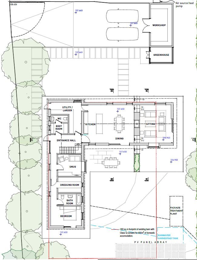
New Barn provides an exciting opportunity to acquire a barn with permission to demolish and replace with a new build in a picturesque rural position in North Devon with far reaching countryside views. Consent was granted in March 2025 for the conversion into a four-bedroom family home totalling approximately 3,750 sq ft. Plans also include the creation of an ecological haven within the property’s extensive 17 acre grounds.
On the ground floor proposed plans include a welcoming entrance hall that leads through to the open-plan kitchen/dining room that has sliding glass doors that open onto the outside terrace providing excellent space for al fresco dining and entertaining. The adjoining sitting room benefits from a triple-aspect allowing for a wealth of natural light. A comfortable snug provides further comfortable reception space while the proposed plans also include a generous ground floor bedroom complete with an ensuite bathroom and adjoining dressing room. A utility room/larder will provide further space for storage and appliances with the ground floor plans completed by a boot room and cloakroom. Upstairs, plans include a further three double bedrooms serviced by a family bathroom and a shower room. The planning history can be viewed on the Torridge District Council planning portal under reference 1/1031/2024/FUL.
New Barn lies in a beautiful rural setting between the historic port town of Bideford on the estuary of the River Torridge and the coastal town of Bude. The barn is within easy reach of the stunning Hartland Devon Heritage Coast and surrounded by rolling countryside. Nearby, the renowned village of Woolsery (The Collective at Woolsery, www.woolsery.com) has a local shop, a pub and a primary school, while Bideford and Bude are both around 12 miles away and provide a range of everyday amenities, including a selection of high street and independent retailers and larger supermarkets. Barnstaple is 20 miles away, providing a further choice of shopping and leisure facilities as well as a mainline railway station with connections to Exeter with onward links to London. The idyllic countryside surrounding the barn provides a plethora of walks, rides and other outdoor pursuits with the Tarka Trail and Exmoor National Park within easy reach. The attractive sandy beaches at Saunton, Woolacombe and Croyde are also within a short distance. The area is well connected by road, with the A39 providing access along the coast, while the A386 and A377 offer routes towards Exeter and Plymouth.
Local Authority: Torridge District Councl
Services: Mains electricity and water connected.
Mobile and Broadband checker: Information can be found here https://checker.ofcom.org.uk/en-gb/
Council Tax: Not yet rated
Planning Reference: 1/1031/2024/FUL. Prospective purchasers are advised that they should make their own enquiries of the local planning authority.
Wayleaves and easements: The property is sold subject to any wayleaves or easements, whether mentioned in these particulars or not.
New Barn will sit in extensive grounds of approximately 17 acres with far-reaching views across the surrounding countryside. Plans include a large wrap-around terrace, with new orchard planting and rolling lawns. The grounds are bordered by mature hedgerow providing a high degree of privacy and providing an ideal opportunity to create a smallholding. The grounds have been designed to promote biodiversity and include the creation of a large pond to attract a variety of wildlife and fauna as well as adding various nest boxes around the land. The eastern boundary of the land includes direct frontage to a babbling stream that adjoins the River Torridge as well as areas of woodland. Parking is provided at the side of the property with space for several vehicles. Plans also include a spacious workshop and greenhouse.
An additional 15 acre field is available by separate negotiation.











